Share this Listing
Location
Key Details
$474,900.00
2 Baths
Detached
Bungalow
995 SQ.FT
1968
Saskatoon
Description
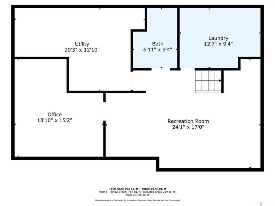
Welcome Home, to this quaint bungalow, with an abundance of renovations throughout! It's nestled in the quiet and sought after community of Eastview and features 3 bedrooms and 2 bathrooms (1-4pc & 1-3pc). Upon entering you are greeted by the charming living room with newer vinyl flooring and large windows to allow plenty of natural light. The harmonious flow leads you seamlessly into the efficiently designed kitchen and dining area, complete with all appliances for your convenience. A well-appointed pantry and generous cupboard & counter space ensures that all your culinary endeavors are met with ease and efficiency. The patio door opens up to a deck(freshly stained) and spacious backyard, perfect for outdoor gatherings and relaxation. The backyard further showcases a convenient double detached garage (insulated, 220V plug and RO in-floor heat, 24x26), garden area, fire pit, BBQ hook-up, underground sprinklers (back only) and shed. Lastly, moving to the finished basement boasting a larger recreation area, office space, 3-piece bathroom, laundry and utility rooms adds to the convenience and functionality of this home. Many upgrades throughout to note: Vinyl flooring (2019), full main floor bathroom (2019), baseboards & trim (2019), basement carpets (2025), Washer & dryer (2025), Dishwasher (2021), water heater (2019), AC (2022), Sub panel (2019), shingles on garage (2024), vinyl fencing (2025), the home has been repainted throughout, light fixtures updated and so much more. This home is ideally located to many local amenities: schools, parks, shopping and public transit which ensures a truly fulfilling lifestyle.
Listing courtesy of Realty Executives Saskatoon
More Info
City: Saskatoon
Square Footage: 995
Year Built: 1968
Style: Bungalow
Type: House
Roof: Asphalt Shingles
Outdoor: Deck, Fenced, Firepit, Garden Area, Lawn Back, Lawn Front, Trees/shrubs
Exterior: Stucco
Furnace: Furnace Owned
Heating: Forced Air, Natural Gas
Features Interior: 220 Volt Plug,air Conditioner (central),floating Shelves,natural Gas Bbq Hookup,t.v. Mounts,underground Sprinkler
Appliances: Fridge,stove,washer,dryer,dishwasher Built In,freezer,garage Door Opnr/control(s),hood Fan,microwave,shed(s)
Land Size: 6541.00
Total Acres: 0.1502
Water Heater: Included
Water Softener: Not Included
Listed By: Realty Executives Saskatoon