MLS®# SK021530

680 7th AVENUE

$115,000.00 CAD
Melville
MLS®# SK021530


Location


Key Details

$115,000.00
1 Baths
Apartment
Multi-level
532 SQ.FT
2012
Melville

Description

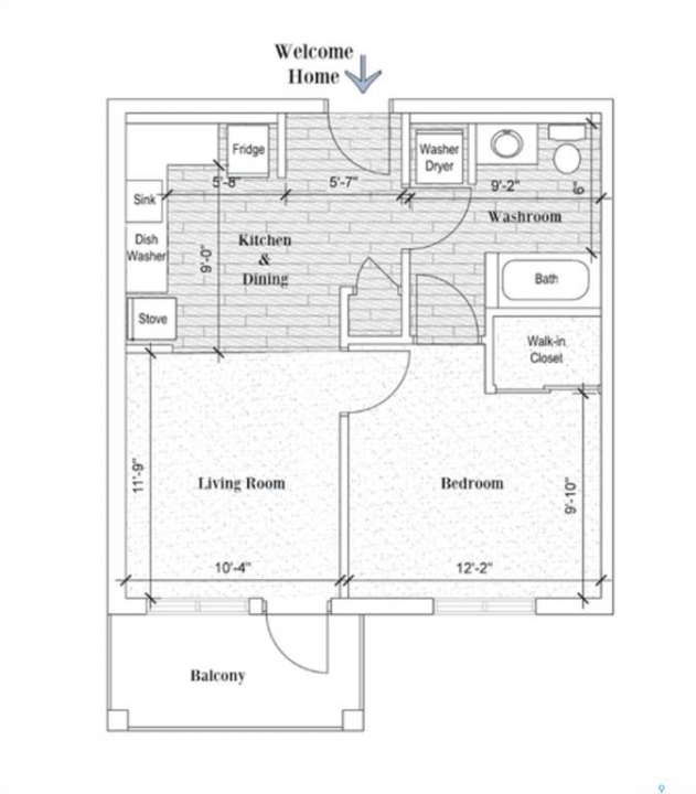
Welcome to effortless living at the charming Cumberland Villas in Melville. This inviting 532 sq. ft. � one bedroom, on bathroom suite on the 4th floor offers comfort, convenience, and thoughtful design. The eat-in kitchen flows seamlessly into a bright, spacious living area and features 4 appliances along with generous counter and cabinet space. The bedroom is well-sized with a large closet, and the 4-piece bathroom includes stackable laundry accessible from both the foyer and bedroom for added ease. Step out onto your private north-facing balcony, perfect for relaxing or enjoying the fresh air. This suite includes a dedicated parking stall and access to a wide range of amenities, such as a dining and bistro area, workshop, library, elevator, lounge, and recreation center — all designed to enhance your lifestyle. At Cumberland Villas, you'll discover a welcoming community and the perfect place to call home.

Listing courtesy of Royal Lepage Next Level


More Info

City: Melville
Square Footage: 532
Year Built: 2012
Style: Multi-level
Type: High-rise (4 Floors Or Higher)
Roof: Asphalt Shingles
Outdoor: Lawn Back, Lawn Front, Trees/shrubs
Amenities: Amenities Room, Dining Facility, Elevator, Guest Suite, Lounge, Visitor Parking, Wheelchair Access
Exterior: Rock Imitation,siding,vinyl

Heating: Electric, Forced Air
Features Interior: Accessible By Wheel Chair,air Conditioner (central)
Appliances: Fridge,stove,washer,dryer,dishwasher Built In,hood Fan,window Treatment
Land Size: 3.18
Total Acres: 3.1800
Listed By: Royal Lepage Next Level