MLS®# SK025853

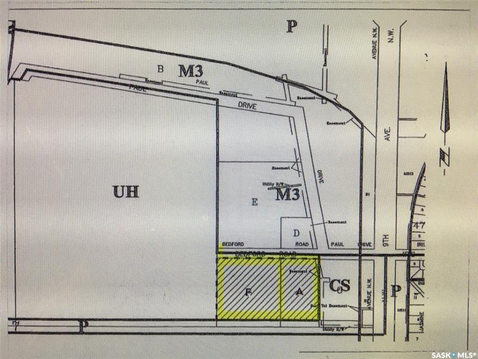
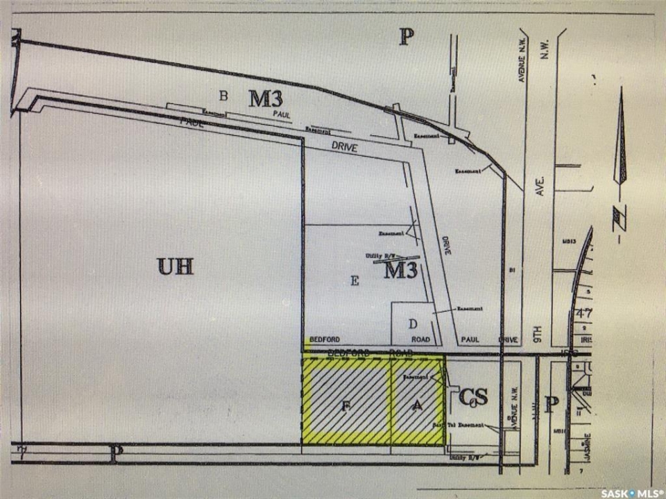
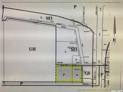
Parcel F Bedford ROAD

$530,000.00 CAD
Moose Jaw
MLS®# SK025853


Location


Key Details

$530,000.00
Land
Moose Jaw

Description

What a location! Zoned Commercial “C3” and just off 9th Ave, close to Highway #1 in the NW corner of Moose Jaw, this property is perfect for any kind of commercial or retail development. Parcel F is 5.3 acres, and is located directly West of Parcel A, see map. For more information call seller's agent

Listing courtesy of Royal Lepage Next Level


More Info

City: Moose Jaw
Type: Land
Bush: Some
Land Size: 5.30

Sloughs: None
Topography: Flat
Total Acres: 5.3000
Listed By: Royal Lepage Next Level