MLS®# SK027041

1525 5th AVENUE

$16.00 CAD
Prince Albert
MLS®# SK027041


Location


Key Details

$16.00
Retail
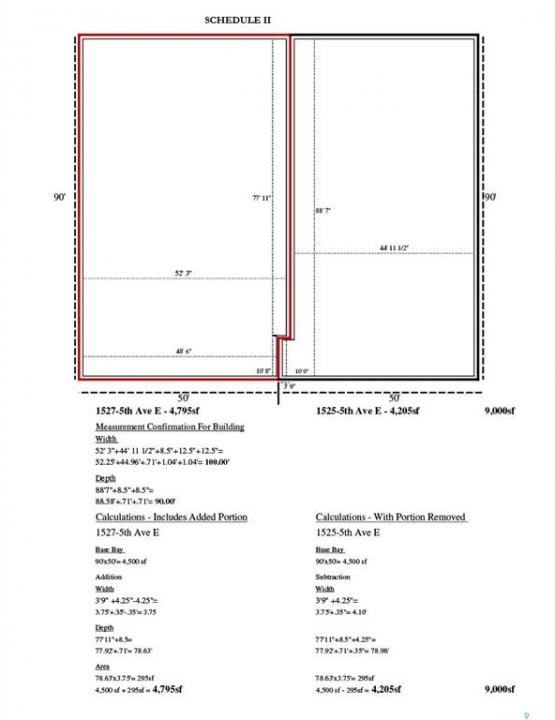
4,205 SQ.FT
1988
Prince Albert

Description

Great retail or light manufacturing location! Just off of 15th Street and across the parking lot from the REal Canadian Superstore. Ideal location for distributers, liquidation stores, warehouse, or many other possibilities. Good visibility to 15th Street for coroporate flag advertising. (15th Street is one of Prince Albert's busiest corridors averaging over 21,000 vehicles daily). There is a total of over 4150sq/ft of floor space with 1 overhead door for easy access. Landlord is willing to offer incentives for the right tenant with a long term lease. Anchor tenant on the south half of the building to be announced in the coming months.

Listing courtesy of Advantage Real Estate


More Info

City: Prince Albert
Square Footage: 4205
Year Built: 1988
Type: Retail
Amenities: Interior Space, Onsite Parking, Store Front, Wheelchair Access

Heating: Air Conditioning, Overhead Unit Heater, Roof Top H/vac
Parking Facility: Yes
Smoke Detectors: No
Listed By: Advantage Real Estate