MLS®# SK028186

1300 8TH AVENUE

$16.50 CAD
Regina
MLS®# SK028186
Virtual Tour


Location


Key Details

$16.50
Warehouse
6,400 SQ.FT
1946
Regina

Description

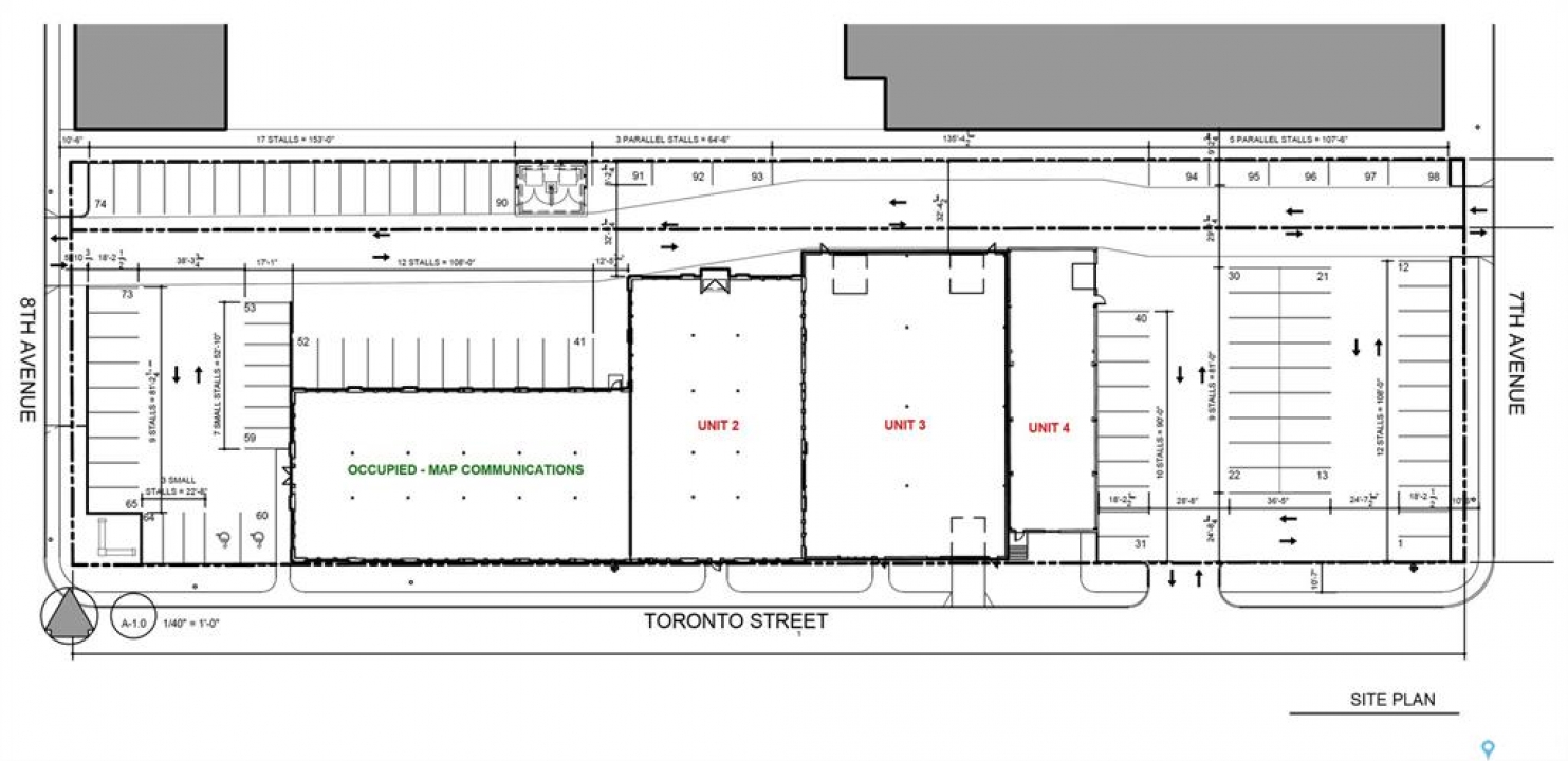
This historic and character-filled building (formerly Signal Industries) offers flexible spaces for lease ranging from 6,400 sqft up to 17,620 sqft. (when combined with two adjacent units to the north). This particular space features an atrium-like feel with abundant natural light and high ceilings. Its unique and rustic character-rich environment makes it suitable for a showroom, warehouse, storage, office, or creative studio. Currently the space is wide open with a loading dock at the west elevation. Up to 14 stalls available and more if combined with adjacent spaces.

Listing courtesy of Re/max Crown Real Estate


More Info

City: Regina
Square Footage: 6400
Year Built: 1946

Type: Warehouse
Heating: Other
Listed By: Re/max Crown Real Estate