MLS®# SK033053

806 Algoma AVENUE

$174,900.00 CAD
Moose Jaw
MLS®# SK033053


Location


Key Details

$174,900.00
4 Baths
Detached
2 ½ Storey
1,691 SQ.FT
1910
Moose Jaw

Description

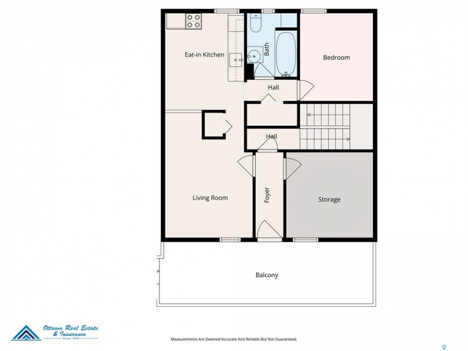
UNIQUE OPPORTUNITY - 4 SUITES - 4 INCOMES. Estimated combined rents from $2750 to $3000/month. Current tenants rent 2nd level suite ($750/month) and 3rd level suite ($600/month). Two suites on main floor are currently vacant. See SUITE LAYOUT in photos. Updates include High-Efficient Furnace and TWO water heaters. Foundation of home will need some work in future. Property is sold FURNISHED and 'AS IS'. An excellent option for INVESTMENT in long-term AND/OR short-term rentals! Priced to sell!

Listing courtesy of Ottawa Real Estate Co. Ltd.


More Info

City: Moose Jaw
Square Footage: 1691
Year Built: 1910
Style: 2 ½ Storey
Type: House
Roof: Asphalt Shingles
Outdoor: Deck

Exterior: Stucco
Heating: Forced Air, Natural Gas
Appliances: Fridge,shed(s),stove,window Treatment
Water Heater: Included
Listed By: Ottawa Real Estate Co. Ltd.